Area Surveying, Measurement & Referencing Services in the UK

Area Surveying Services

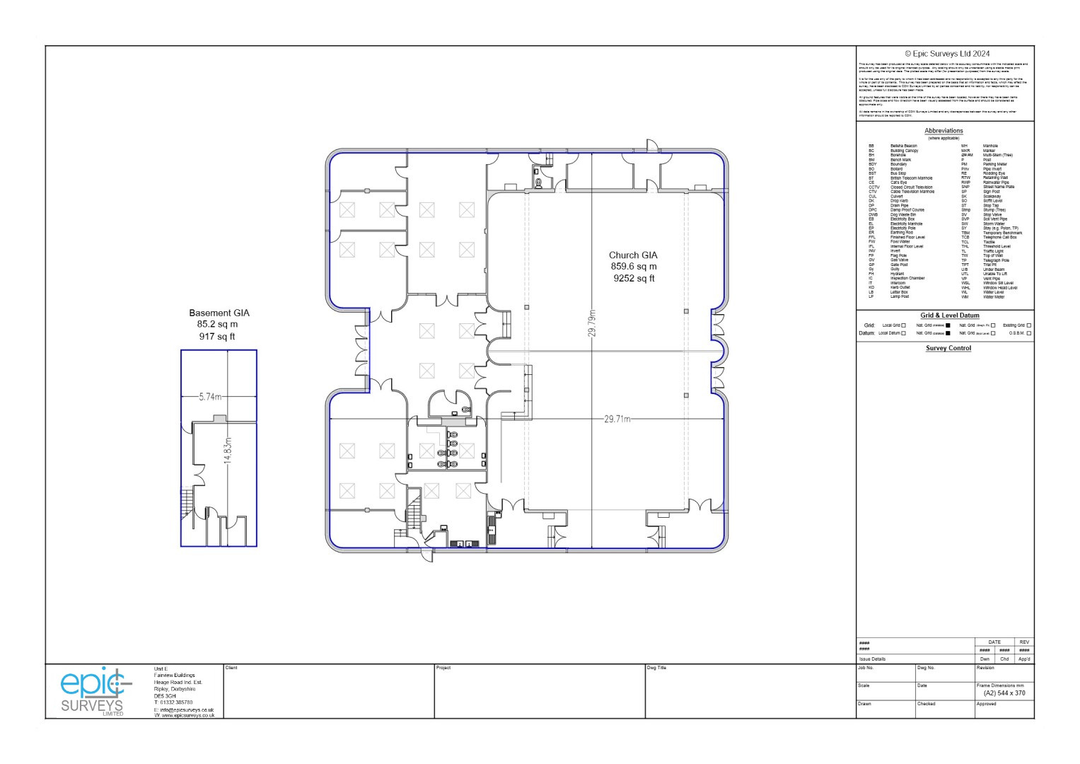
Accurate area calculations are used as the basis for valuations, leasing agreements, marketing and property ratings, in both the commercial and residential sectors, and are defined as the usable floor space within a building (excluding certain specific areas). The measurement of space is factual, not subjective, and Epic Surveys Ltd. can offer unbiased, independent area referencing, providing area reports, spreadsheet data and plan information undertaken accurately and in line with the latest edition of the RICS Code of Measuring Practice.

We regularly utilise a range of bases for measurement, depending on client requirements, including:

  • Net Internal Area (NIA)
  • Gross Internal Area (GIA)
  • International Property Management Standards (IPMS3)

Epic Surveys Ltd. offer a professional and independent Area Referencing service to those involved in the management, rating, leasing and sale of property. Our portfolio of Area Referencing work includes the measuring of office space, retail and industrial sites. We are also experienced in measuring large retail spaces within major retail malls and centres nationwide, both for the property owners, operators, and blue chip tenants, including retail zoning services.

Our Area Referencing services are often utilised by Legal Specialists, Building Developers, Owners and Operators, as well as Investments and Pension Funds who require specific information in order to complete valuations of property based upon floor space.

Typical Clients

  • Property Owners/Developers (Commercial & Domestic)
  • Building/Facility Operators
  • Legal Professionals
  • Property Portfolios
  • Retail Mall Owners/Operators
  • Retail Tenants
  • Hotel & Hospitality Industry

Retail Unit - GIA Surveys

Mixed Use - NIA Survey

Public Sector - GIA Survey